Mieszkanie na sprzedaż Wrocław, Śródmieście, Ołbin

51.50 m²
3 pokoje
3 piętro
13 737,86 zł/m2
OTO-MS-31077

707 500 zł

Mieszkanie na sprzedaż
Nowa oferta

Szczegóły oferty

Symbol oferty OTO-MS-31077
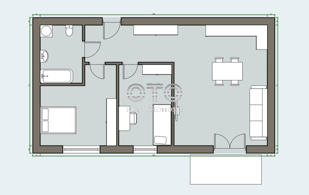
Powierzchnia 51,50 m²
Powierzchnia użytkowa [m2] 51,50 m²
Powierzchnia balkonów/tarasów 3,00 m²
Liczba pokoi 3
Liczba sypialni 2
Rodzaj budynku nowe budownictwo
Technologia budowlana silikat
Standard
Opłaty w czynszu CO, fundusz remontowy, Części wspólne, administracja, ogrzewanie, sprzątanie, Winda, woda, woda ciepła, woda/ryczałt na wodę, wywóz nieczystości, wywóz śmieci, zaliczka na fundusz remontowy
Opłaty wg liczników Woda zimna, Woda ciepła, woda, prąd, CO
Piętro 3
Liczba pięter w budynku 5
Garaż garaż pod budynkiem
Stan lokalu deweloperski
Okna PCV
Instalacje nowe
Balkon jest
Liczba balkonów 1
Rok budowy 2027
Plac zabaw tak
Ogrzewanie miejskie
Alarm tak
Winda tak
Usytuowanie jednostronne
Drzwi antywłamaniowe tak
Filip Kociołek

Filip Kociołek

Specjalista ds.nieruchomości

Napisz wiadomość Więcej ofert

Opis nieruchomości

Gotowe w 2027!/ Ogrzewanie miejskie / Winda/ Blisko centrum/ Dobrze skomunikowane/ Pełna infrastruktura/ Nowoczesne osiedle

Posiadam w sprzedaży mieszkania na różnych piętrach oraz w różnym metrażu zarówno na tej inwestycji jak i w całym Wrocławiu. Zadzwoń i umów się na spotkanie!

Kupujący nie płaci prowizji oraz podatku PCC.


Największe atuty inwestycji:
- tereny rekreacyjne: Park Stanisława Tołpy, tereny spacerowe wzdłuż Odry
- pełna infrastruktura
- balkon do każdego z mieszkań
- blisko centrum
- osiedlowa strefa fitness

Mieszkanie o powierzchni około 52 m2 składa się z:
- pokoju dziennego z aneksem kuchennym
- dwóch sypialni
- łazienki z wc

Dodatkowo:
- balkon

Termin zakończenia budowy: 3 kwartał 2027!

Mieszkanie jest oddawane w stanie deweloperskim, do własnej aranżacji. 
Zdjęcia przedstawione w ofercie są wizualizacjami. 

✔︎ Zapewniam pomoc w uzyskaniu kredytu oraz wykończeniu mieszkania pod klucz.
✔︎ Kupując z nami nieruchomość zyskujesz 10% rabatu na wykończenie lub remont mieszkania*
✔︎ Możliwość bezpłatnej rezerwacji mieszkania.

Zapraszam do kontaktu: 
Filip Kociołek: tel. 881 474 221

@-mail: filip@oto-oto.pl
Pośrednik odpowiedzialny zawodowo za wykonanie umowy pośrednictwa: Grzegorz Niewczas (licencja nr: 21838)
oto-1a456
Oferta została przygotowana na podstawie informacji uzyskanych od dewelopera. Informacje te są przez nas weryfikowane i sprawdzane, mogą jednak ulegać aktualizacji, w związku z czym powyższa oferta nie stanowi oferty handlowej w rozumieniu Kodeksu Cywilnego, a dane w niej zawarte mają jedynie charakter informacyjny.

Lokalizacja nieruchomości

Kalkulatory

Kalkulator kredytowy

Wysokość raty

PLN
%

Podobne oferty

Mieszkanie na sprzedaż

Wrocław, Śródmieście

63 m2 3 Pokoje 1 piętro 14 126,98 zł/m2

Mieszkanie na sprzedaż

Wrocław, Śródmieście

60 m2 2 Pokoje 4 piętro 9 150,00 zł/m2

Mieszkanie na sprzedaż

Wrocław, Śródmieście

46 m2 2 Pokoje 4 piętro 15 217,39 zł/m2

Mieszkanie na sprzedaż

Wrocław, Śródmiescie

63 m2 3 Pokoje 3 piętro 12 222,22 zł/m2

Dzielnice i osiedla we Wrocławiu

Specjalista ds.nieruchomości

Proszę wprowadzić poprawne imię i nazwisko
Proszę wprowadzić poprawny numer telefonu
Proszę wprowadzić poprawny adres e-mail

Mając na względzie ochronę Państwa danych osobowych i wypełniając obowiązki nałożone na nas przepisami prawa informujemy, że wskazane w formularzu przez Państwa dane osobowe przetwarzane będą na podstawie wyrażonej zgody. Mają Państwa prawo dostępu do swoich danych osobowych i ich poprawiania. Podanie danych osobowych jest dobrowolne.

Proszę zaznaczyć wymagane zgody
Proszę zaznaczyć wymagane zgody
Proszę zaznaczyć wymagane zgody

Informujemy, że Państwa zgoda może zostać cofnięta w dowolnym momencie przez wysłanie wiadomości e-mail na nasz adres biuro@oto-oto.pl spod adresu, którego zgoda dotyczy. Informujemy, że nie jesteście Państwo profilowani. Państwa dane nie będą przekazywane poza EOG ani udostępniane organizacjom międzynarodowym.

Zawiadamiamy, że administratorem Państwa danych osobowych wskazanych w powyższym formularzu jest OTO NIERUCHOMOŚCI Grzegorz Niewczas.

Klauzula informacyjna RODO

Rozwiąż równanie:
29 2
Niepoprawny wynik